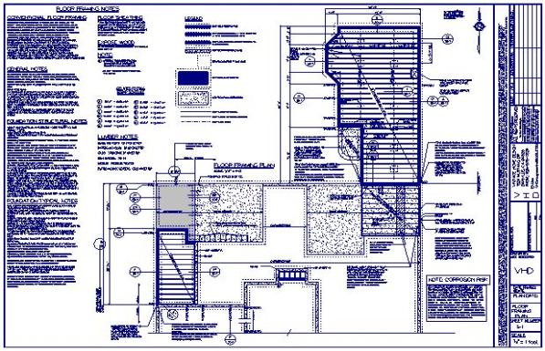
FOUNDATION FLOOR FRAMING  SHEET
DRAWING INDEX
back ground
Copyright 2011 © Vintage Home Design. All rights